Používame cookies

Súbory cookie a ďalšie technológie sledovania používame na zlepšenie vášho zážitku z prehliadania našich webových stránok, na to, aby sme vám zobrazovali prispôsobený obsah a cielené reklamy, na analýzu návštevnosti našich webových stránok a na pochopenie toho, odkiaľ naši návštevníci prichádzajú. Viac info

 

Na prenájom kancelársky priestor 28 m², Nitra centrum

Ulica: Štefánikova
Mestská časť: Staré Mesto
Obec: Nitra
Okres: Nitra
Kraj: Nitriansky kraj
Druh: Objekty
Typ: Prenájom
Typ objektu: Kancelárie
Iné:
282 €/mesiac
+ energie

Popis nehnuteľnosti

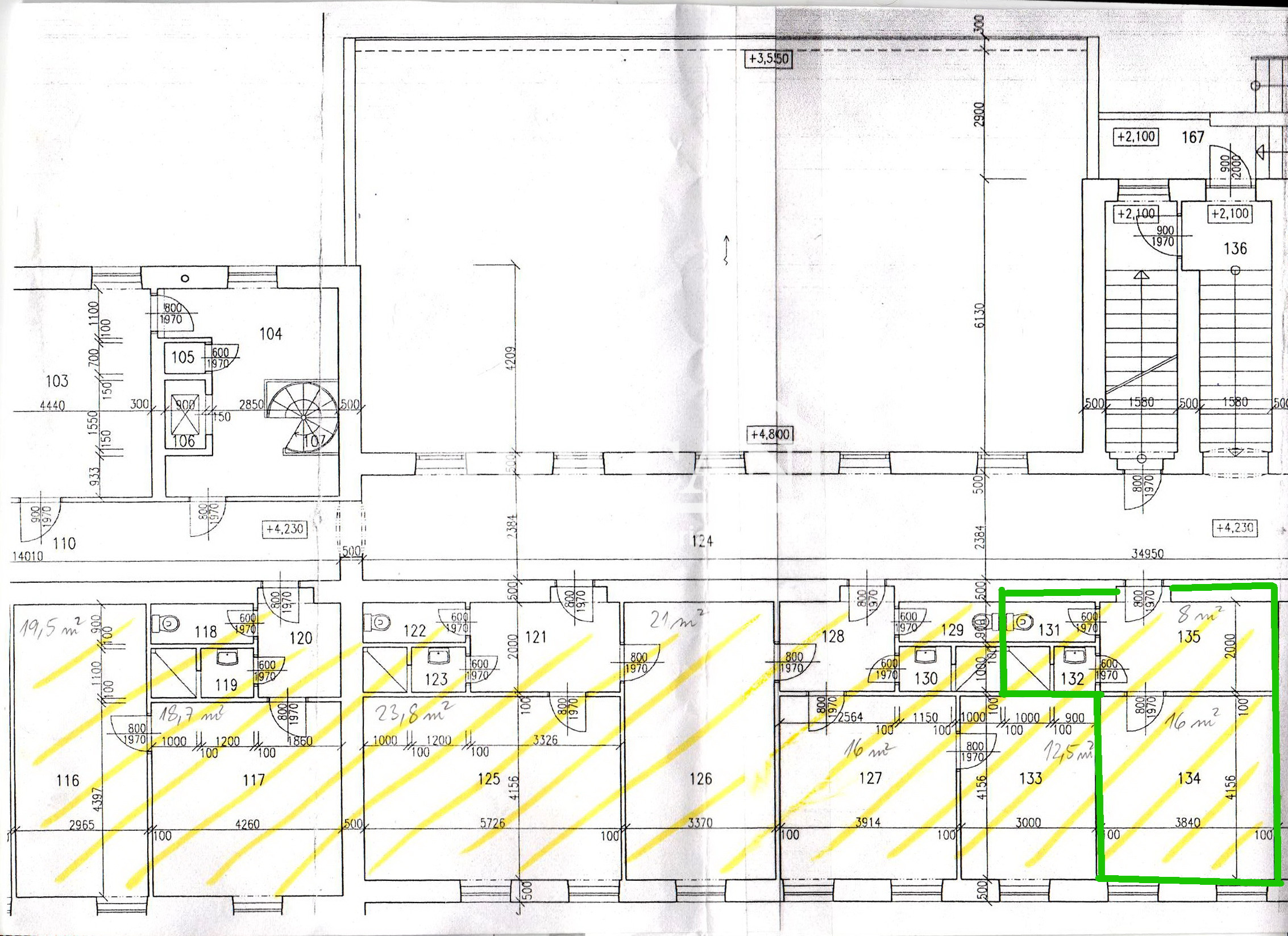
Ponúkame do prenájmu kancelársky priestor v priamom centre Nitry na Štefánikovej ulici, v blízkosti MSÚ, Polygónu autobusovej stanice , 1.poschodie. Jedná sa o  kancelársky priestor vo forme bunky, so samostatným vstupom s predsieňou, kanceláriou 16 m², kuchynkou s malým drezom (2 umývadlá) a samostatným WC  vo výmere 28 m². Priestor je zrekonštruovaný, okná sú situované na hlavnú cestu. Podlaha v kancelárii a na chodbe je plávajúca. V predsieni je posuvnými dverami vytvorený priestor na sklad.

Parkovanie je verejné, v okolí sú parkoviská. Za budovou je aj malé súkromné parkovisko, kde k parkovacím miestam majú prístup len nájomníci, ale ich počet je obmedzený a nie je vyhradený pre konkrétneho nájomcu (kto príde prvý).

Energie sa hradia samostatne vo forme zálohovej platby cca 38 € + elektrina je podľa skutočnej spotreby. Skladá sa 2 mesačná kaucia.

Kancelársky priestor je voľný ihneď.

Vlastnosti

Status:
aktívne
Vlastníctvo:
osobné
Úžitková plocha:
28 m2
Podlahová plocha:
28 m2
Skladová plocha:
4 m2
Stav:
čiastočne prerobený
Počet izieb:
1
Typ budovy:
tehla
Typ výbavy:
čiastočne vybavený
Celková plocha:
28 m2
Inžinierske siete:
áno
Voda:
áno
Elektrika:
áno
Plyn:
áno
Kanalizácia:
áno
Status:
aktívne
Vlastníctvo:
osobné
Úžitková plocha:
28 m2
Podlahová plocha:
28 m2
Skladová plocha:
4 m2
Stav:
čiastočne prerobený
Počet izieb:
1
Typ budovy:
tehla
Typ výbavy:
čiastočne vybavený
Celková plocha:
28 m2
Inžinierske siete:
áno
Voda:
áno
Elektrika:
áno
Plyn:
áno
Kanalizácia:
áno

Pozrieť na mape

Maklér

Dolcan, s.r.o.

Dolcan, s.r.o.

maklér

  • Slovensky
  • English

Radi Vám poradíme

Podobné nehnuteľnosti